Vendita Casa a schiera Borgoricco (Padova)

Situato in: Borgoricco (Padova) Borgoricco
Indirizzo: Via Pelosa Vedi Mappa
€ 330.000
Cod.: 2025-56
Tip.: Casa a schiera
Contratto: Vendita
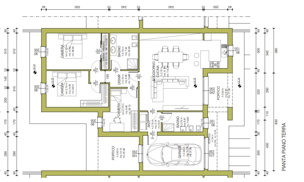
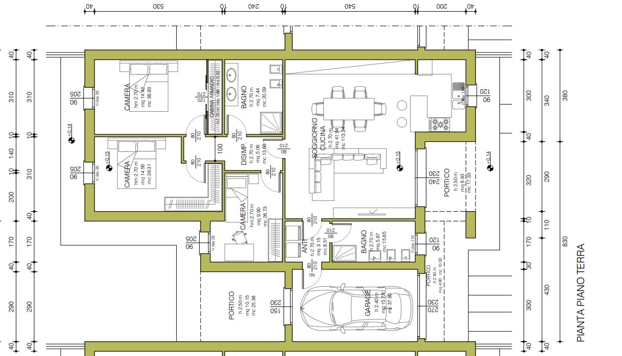
Num camere:3
Num bagni: 2
Mq: 150 mq
Piano: 0°/1
Anno: 2025
IPE: 4.86kWh/m2anno
Ulteriori dettagli: Garage, Giardino, Ingresso indipendente, Posto auto, Riscaldamento a pavimento, Soggiorno con angolo cottura, Piano terra, Totale piani (1), Piano numero (0), Nuovo, Predisposizione aria condizionata, Predisposizione allarme, Pannelli fotovoltaici, Classe energetica: A4, Stato manutenzione: Nuovo, Panorama: Vista aperta, Numero locali: 4, Porticato, Accesso disabili, Animali ammessi, Porta blindata, Numero portoni (1), Numero accessi carrai (1), Impianto elettrico: A norma, Canna fumaria, Connettività: Adsl
Chiedi all'agenzia
Nominativo*
Telefono*
Email*
Messaggio*
Autorizzo il trattamento dei dati personali Privacy Policy